Продажа 2-комнатная квартира, Уфа, ул. Ферина, д.24/1

Цена:
2 304 000 Р
Тип объявления: Продажа

Информация о недвижимости

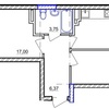
Площадь жилая: 26.84 м²
Площадь кухни: 10.85 м²
Количество комнат: 2
Этаж : 17
Тип дома: Монолит/кирпич
Дополнительная информация: Продается 2-х комнатная квартира в ЖК Акварель. Комплекс ограничен бульваром Тухвата Янаби, улицами имени Фронтовых бригад, Ферина, переулком железнодорожным и продолжением улицы Сельской Богородской в Калининском районе городского округа город Уфа Республики Башкортостан.Квартал будет располагаться в активно развивающемся микрорайоне Инорс, имеющем развитую транспортную сеть. В шаговой доступности расположена остановка «Ферина», около 20 видов удобных маршрутов, которые доставят Вас в любую точку Уфы.Инфраструктура: школы № 51, 74, детские сады № 16, 58, 262, 264, 316, кафе, рестораны, взрослая поликлиника, детская поликлиника. Квартира общей площадью 50,1 кв.м. Кухня 10,85, спальня 9,84, зал 17.  Лоджия, санузел совмещенный. Выбор по этажам есть. Ипотека возможна. Сдача объекта 4 кв. 2017 года. ДДУ.

Местоположение

Город: Уфа
Адрес: ул. Ферина, д.24/1

Объявление в архиве