Продажа 2-комнатная квартира, Уфа, ул. Первомайская, д.71/4

Цена:
2 550 000 Р
Тип объявления: Продажа

Информация о недвижимости

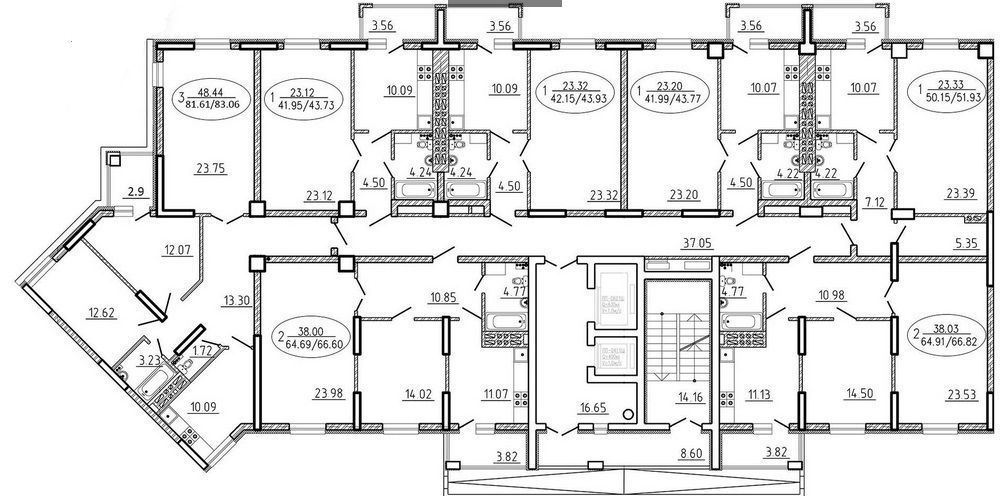
Площадь жилая: 38.0 м²
Площадь кухни: 10.1 м²
Количество комнат: 2
Этаж : 6
Тип дома: Монолит/кирпич
Дополнительная информация: Продается двухкомнатная квартира в ЖК «Первомайский» в строящемся доме по ул. Первомайская д. 71/4.  Этаж 6 из 12, материал строительства монолит+кирпич. Общая площадь 66,6, жилая 38, кухня 10,07 кв.м. Планировка предусматривает холл 11 кв.м., жилые комнаты площадью 24+14 кв.м., выход на лоджию из кухни. Комнаты и кухня изолированы, правильной формы.Квартира окнами выходит в сторону бани, во двор. В прихожей площадью 11 кв м есть место для большого шкафа-купе.Отделка получистовая, дом строится, срок сдачи 4 квартал 2017 года.  Ипотека возможна.  Оформление по Договору долевого участия согласно 214ФЗ с обязательной регистрацией в Росреестре. Страхование гражданской ответственности застройщика в соответствии с поправками к 214-ФЗ РФ от 01.10.2015 года. Этаж условный, метраж и этаж квартиры в данном доме можно выбрать. Два детских сада находятся в соседнем дворе, в шаговой доступности гимназия №111, остановка "ул. Свободы". Очень богатая инфраструктура микрорайона.

Местоположение

Город: Уфа
Адрес: ул. Первомайская, д.71/4

Объявление в архиве