Продажа 2-комнатная квартира, Уфа, ул. Первомайская, д.3

Цена:
2 900 000 Р
Тип объявления: Продажа

Информация о недвижимости

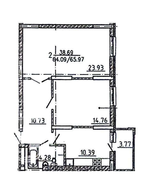
Площадь жилая: 40.0 м²
Площадь кухни: 10.0 м²
Количество комнат: 2
Этаж : 11
Тип дома: Кирпичный
Дополнительная информация: Срок сдачи - 3 квартал 2016 года. Договор Долевого Участия с регистрацией в регпалате по №214 ФЗ.Квартира с получистовой отделкой. Дисконт от подрядной организации.Материал стен: каркасно-монолитный.Заполнение наружних стен: из кирпича.Конструкция кровли: плоская мягкая.Наличие систем:— пассажирские и грузопассажирские лифты грузоподъемностью 400 и 630 кг.;— централизованное электроснабжение;— отопление, вентиляция, дымоудаление;— горячее и холодное водоснабжение;— домофонная связь, телефонизация, телевидение, мусоропроводЭлектрооборудование и сантехническое оборудование :— разводка сетей электро-, тепло-, водоснабжения с установкой приборов учета, сетей водоотведения, установка приборов отопления;— установка сантехнического оборудования: умывальник, мойка, унитаз со смесителем;— установка электроплиты.Виды работ, выполняемых в квартире:— ограждение балконов и лоджий блоками из ПВХ с одинарным остеклением;— установка оконных и балконных блоков из ПВХ с двухкамерными стеклопакетами;— установка подоконников;— улучшенная штукатурка стен;— затирка швов потолка;— цементная стяжка, звукоизоляция пола и гидроизоляция пола в санузлахРазвитая инфраструктура: рядом 2 садика, 2 гимназии, ДК Химик, ДК УМПО, школа, остановки общественного транспорта Свобода и Кремлёвская, супермаркеты, отделения банков. Надежный застройщик Страхование гражданской ответственности застройщика (согласно внесению изменений в ФЗ №214) входит в стоимость квартиры. - ДДУ (договор долевого участия) регистрируется в ГРП (Росреестр).Ипотека с ГОСПОДДЕРЖКОЙ от ведущих банков.Подберем ипотечную программу в офисе и отправим в банк на рассмотрение.Юридическое сопровождение и помощь в оформлении кредита на выгодных для Вас условиях - бесплатно. С проектной документацией можно ознакомиться в офисе нашей компании, в отделе продаж. Вопросы по телефону. Звоните.Застройщик ООО МТПК «МАШТЕХРЕСУРСЫ». 

Местоположение

Город: Уфа
Адрес: ул. Первомайская, д.3

Объявление в архиве