Продажа 1-комнатная квартира, Уфа, ул. Пархоменко, д.121

Цена:
2 317 000 Р
Тип объявления: Продажа

Информация о недвижимости

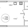
Площадь жилая: 20.0 м²
Площадь кухни: 10.0 м²
Количество комнат: 1
Этаж : 8
Тип дома: Монолит/кирпич
Дополнительная информация: Квартиры от Застройщика в центре города! Система видеонаблюдения, шлагбаум и пункт охраны, огороженная территория, шумоизоляция пола, дизайнерские парадные сконсьерж-системой, бесшумные лифты.На первом этаже жилого дома будут располагаться торгово-офисные помещения, банки, продуктовые магазины.Благоустройная придомовая территория, вентилируемый фасад из керамогранита, удачное месторасположение и панорамный вид из окон.ЖК Петропавловский находится в центре города на пересечение улиц Пархоменко Петропавловская Краснодонская и Цюрупы.Развитая инфаструктура. В шаговой доступности расположены:- ТК «Центральный»- Фитнес-клуб «Fitness Land», Фитнес-клуб OLYMPIA, ElitaFitness – Центр- парк имени Якутова- Сквер 50-летия Победы- Развлекательный комплекс «Огни Уфы»- Ледовый комплекс «Уфа-Арена»- Банный комплекс «Уфимские Бани»Оформление квартир в рамках ФЗ- 214 (ДДУ), с обязательной регистрацией в рег. палате.Ипотека с ГОСПОДДЕРЖКОЙ от ведущих банков (Абсолютбанк, Сбербанк, ВТБ24, Газпромбанк, Банк Москвы). Подберем ипотечную программу в офисе и отправим в банк на рассмотрение.Юридическое сопровождение и помощь в оформлении кредита на выгодных для Вас условиях - бесплатно. С проектной документацией можно ознакомиться в офисе нашей компании, в отделе продаж. Бронировать можно по телефону. Звоните.

Местоположение

Город: Уфа
Адрес: ул. Пархоменко, д.121

Объявление в архиве