Продажа 2-комнатная квартира, Уфа, ул. Московская Большая, д.5б

Цена:
3 490 000 Р
Тип объявления: Продажа

Информация о недвижимости

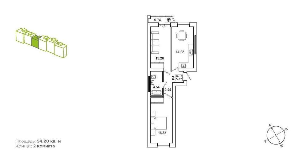
Площадь жилая: 29.15 м²
Площадь кухни: 14.22 м²
Количество комнат: 2
Этаж : 6
Тип дома: Кирпичный
Дополнительная информация: Продается двухкомнатная квартира в Уфе в строящемся жилом комплексе бизнес-класса «Зеленая роща» по ул. Большая Московская 5 б (в квартале ул. Менделеева, Бехтерева, Сун-ят-сена). 6 этаж 11-ти этажного дома из керамического кирпича (не монолит, есть выбор этажа). Площадь 54,2/29,15/14,22 кв. м., совмещенный санузел, лоджия. Есть квартиры площадью 48,34, 55,67, 58,56 кв.м. Высота помещений 2,70 м.Евроотделка включает: обои, ламинат либо линолеум, плитка в санузле, натяжной потолок, межкомнатные двери, сантехника: ванна, раковина, унитаз; входная металлическая дверь, розетки, выключатели, энергосберегающие пластиковые окна, застекленная лоджия. Первый этап строительства уже начался, сдача - 4 кв. 2018 г. Договор долевого участия с регистрацией в регпалате по ФЗ-214. Надежный застройщик, который ведет строительство нескольких крупных жилых комплексов. Семейный жилой комплекс  «Зеленая роща» — это передовые инженерные и архитектурные решения, придомовая территория, созданная для спорта и семейного отдыха, безопасность и комфорт высочайшего уровня, присущие домам «бизнес-класса». Квартал расположен в историческом районе с развитой инфраструктурой, парками и скверами, а также торговыми и развлекательными центрами, фитнес-клубами, кафе и ресторанами, школами, детскими садами и другими неотъемлемыми составляющими активной городской жизни.Жилой комплекс будет построен в районе улицы Сун-Ят-Сена и продолжения улицы Айская.  Мкр. «Старая Уфа» — любимый уфимцами район с богатой историей и сложившейся насыщенной инфраструктурой.Рядом ТРК «Мегаполис», ТК «Аркаим», фитнес-клуб «Менделееф», супермаркет Матрица,  Лента, Ашан, Аксаковская гимназия № 11, школа № 142. До центра города 10 минут. Детские площадки топ-уровня Высококлассные спортивные площадки Ландшафтный парк Прогулочные дорожки Полностью кирпичные стены Современные скоростные лифты OTIS Вентилируемые фасады Дизайнерская отделка помещений общего пользования Колясочные и помещения для хранения спортинвентаря Возможна ипотека в банках: Сбербанк, ВТБ 24, банк Москвы, Россельхоз, Татфондбанк. Рядом улицы Менделеева, Большая Московская, Бехтерева, Кавказская, Высотная, Караидельская, Кувыкина, Сочинская, Губайдуллина, Исмагилова, Софьи Перовской, Амантая, Биишевой, Армавирская, Мубарякова, Колгуевская, Муксинова, Авроры, Рабкоров, Сагита Агиша, Степана Злобина, Бакалинская, Обская, Горбатова, Акназарова.

Местоположение

Город: Уфа
Адрес: ул. Московская Большая, д.5б

Объявление в архиве