Продажа 2-комнатная квартира, Уфа, ул. Первомайская, д.71 литер 4

Цена:
2 830 000 Р
Тип объявления: Продажа

Информация о недвижимости

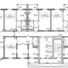
Площадь жилая: 38.0 м²
Площадь кухни: 11.07 м²
Количество комнат: 2
Этаж : 9
Тип дома: Монолит/кирпич
Дополнительная информация: Продается 2-комнатная квартира площадью 66.6 кв.м. В ЖК "Первомайский". Жилая - 38,00 кв.м., кухня- 11,07 кв.м. Санузел совместный. Лоджия застеклена, выход из кухни. Сдача 4 квартал 2017 года. Ипотека возможна.ЖК «Первомайский» располагается в квартале, ограниченном улицами Свободы, Черниковской, Кремлевской и Первомайской города Уфы.Развитая инфраструктура. Магазины, аптеки, салоны красоты, банки, почта и ТЦ «Орленок». Недалеко два детских сада № 152, 242, школы.По плану в жилом комплексе «Первомайский» предусмотрено строительство детских площадок для прогулок.Объект сдается с получистовой отделкой.Рядом ул.Кольцевая, Ульяновых, Черниковская, Невского, Машиностроителей.

Местоположение

Город: Уфа
Адрес: ул. Первомайская, д.71 литер 4

Объявление в архиве