Продажа 1-комнатная квартира, Уфа, ул. Кольцевая, д.191

Цена:
1 780 000 Р
Тип объявления: Продажа

Информация о недвижимости

Площадь жилая: 19.0 м²
Площадь кухни: 5.0 м²
Количество комнат: 1
Этаж : 4
Тип дома: Панельный
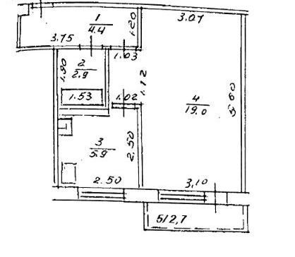
Дополнительная информация: Предлагаем купить 1 комнатную квартиру в Черниковке, г. Уфа, по ул. Кольцевая, д. 191. Этаж 4/5 панельного дома. Общая площадь квартиры 34,9 кв.м., жилая 19 кв.м., площадь кухни 5,9 кв.м. Квартира чистая, аккуратная, имеется лоджия застекленная пластиком, в квартире добротный ремонт, окна пластиковые с тройным остеклением. Планировка квартиры: холл 4,4 кв.м., спальная комната 19 кв.м., кухня 5,9 кв.м., сан. узел совмещённый 2,9 кв.м., балкон 4,4 кв.м. Подъезд чистый и ухоженный, территория дома обустроена детской площадкой, пандусы, парковочными местами и освещением.Квартира выгодно расположена к объектам инфраструктуры: остановки общественного транспорта, магазины, супермаркеты: байрам, магнит, полушка, аптеки, детский сад, парикмахерские, автоцентры, автомойка, парк.Если для покупки данной квартиры Вам необходимо продать свою жил., площадь, Мы можем Вам в этом помочь, обращайтесь по номеру телефону указанному в объявлении.Продажа возможна как за наличный расчет, так и в ипотеку.Заявку на ипотеку Вы можете подать в нашем офисе. ВНИМАНИЕ!!! Возможно использовать материнский капитал в качестве первоначального взноса. Услуги риэлтора оплачивает продавец. Возможен торг реальному покупателю. Сделки нашего агентства застрахованы в Ингосстрахе полис страхования №433-545-045301/16Агентство недвижимости является членом Башкирской Гильдии Риэлторов.№ 84117

Местоположение

Город: Уфа
Адрес: ул. Кольцевая, д.191

Объявление в архиве