Продажа 1-комнатная квартира, Уфа, ул. Октябрьской Революции, д.стр.54 ЖК "Квартал 533"

Цена:
4 037 000 Р
Тип объявления: Продажа

Информация о недвижимости

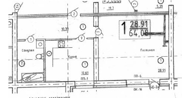
Площадь жилая: 28.91 м²
Площадь кухни: 12.61 м²
Количество комнат: 1
Этаж : 8
Тип дома: Монолит/кирпич
Дополнительная информация: Продается 1-комнатная квартира на 8-м этаже в сдающемся здание. Строительство на стадии отделки. Сдача дома в 3 квартале 2016 г. по ул. Октябрьской революции, 54, перекресток с ул.Воровского, квартал 533 (строительный адрес), 8/9, монолитно-кирпичный дом, 64,08/28,91/12,61, одна застекленная лоджия, 2,7 м. потолки, комната 28,91 кв.м, кухня 12,61 кв.м.Возможна ипотека Сбербанка, ВТБ 24 и др.- внутренние стены и перегородки- пластиковые оконные блоки- полы цементная стяжка- электрическая разводка- стены штукатуркаРядом ул.Коммунистическая, Октябрьской революции, Заки Валиди, Пушкина, Цюрупы.

Местоположение

Город: Уфа
Адрес: ул. Октябрьской Революции, д.стр.54 ЖК "Квартал 533"

Объявление в архиве