Продажа 3-комнатная квартира, Уфа, ул. Энтузиастов, д.2 стр.

Цена:
4 429 000 Р
Тип объявления: Продажа

Информация о недвижимости

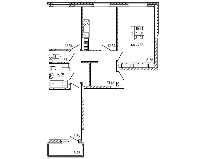
Площадь жилая: 45.94 м²
Площадь кухни: 12.34 м²
Количество комнат: 3
Этаж : 7
Тип дома: Монолит/кирпич
Дополнительная информация: «Квартал Энтузиастов» — объект на строительном рынке Уфы необычный. Начнем с того, что этот огромный жилой комплекс строит федеральная компания, которая уже хорошо зарекомендовала себя в соседних городах — Ижевске, Перми и Набережных Челнах. Используя наработанный опыт, застройщик создал проект уникального обособленного квартала, в котором все находится в непосредственной близости от подъездов домов.По замыслу архитекторов, в «Квартале Энтузиастов» будут жить особые люди — бодрые и веселые, близкие по духу и социальному статусу. Для их удобства создаются приватные условия: круглосуточное видеонаблюдение, огороженный от улицы со всех сторон двор, закрытый для автомобилей и незнакомцев. Парковка транспорта будет осуществляться только с внешней стороны периметра, поскольку придомовая территория предназначена исключительно для семейного отдыха жильцов.Для этих целей внутри ЖК расположатся собственный парк, спортивные площадки с уличными тренажерами, игровые зоны для детей разных возрастов, пешеходные тротуары, беговые и велосипедные дорожки, аллеи, специальная праздничная площадь, супермаркеты и рестораны. Владельцы четвероногих наверняка оценят специальную площадку для выгула своих питомцев. Снаружи квартала «Энтузиастов» находятся ТРК «Планета» с собственным аквапарком, банки, школы и детские сады, поликлиники и больницы, театры и кинозалы.

Местоположение

Город: Уфа
Адрес: ул. Энтузиастов, д.2 стр.

Объявление в архиве