Продажа 3-комнатная квартира, Уфа, ул. Тихорецкая, д.19

Цена:
3 650 000 Р
Тип объявления: Продажа

Информация о недвижимости

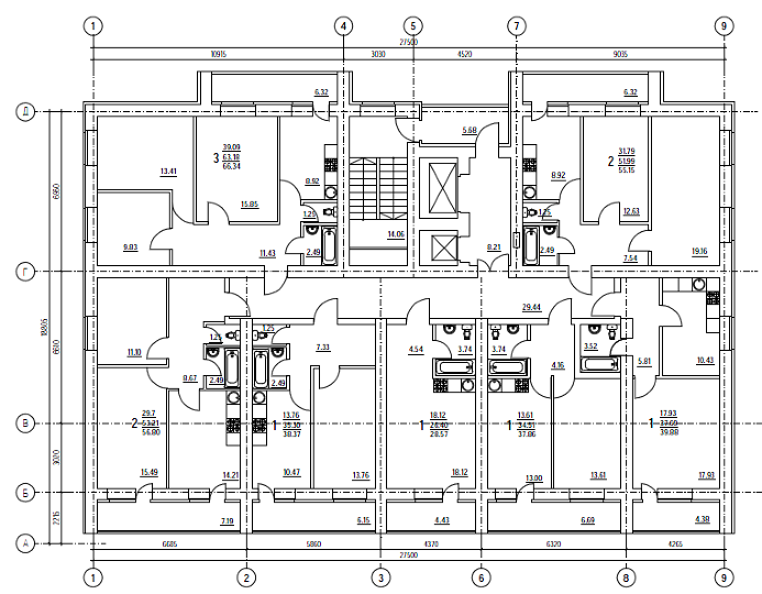
Площадь жилая: 39.0 м²
Площадь кухни: 9.0 м²
Количество комнат: 3
Этаж : 7
Тип дома: Кирпичный
Дополнительная информация: Эксклюзивное предложение!Отрылось бронирование квартир в Новом жилом комплексе по ул. Комсомольская, на против ТРК "Семья"!Новый жилой комплекс комфорт-класса «Семья» от ответственного застройщика "Строй-Высота"– это 16-этажный жилой дом, расположенный в Октябрьском районе г. Уфы, по улице Тихорецкая, д.19. Специально спроектированный для уютной семейной жизни в городе с удобным расоложением, выгодной инфраструктурой и кирпичными стенами- этот жилой комплекс является лучшим решение для молодой семьи и тех, кто ищет максимальный комфорт за оптимальную цену.трехкомнатная Квартира 66.40/39/9, лоджия, кирпичный дом, с черновой отделкой в районе "Универмаг "Уфа"всего за 3 648 700 рублей. сдача дома 1 квартал 2018г., вся разрешительная документация, разрешение на строительство есть, оформление ДДУ через рег палату, страховка, гарантия 5 лет.Ипотека.надежный проверенный застройщик..сейчас ведутся подготовительные работы.в наличии большой выбор студий, 1-2-3-х комнатных квартир, этажи и планировки на выбор, Звоните!

Местоположение

Город: Уфа
Адрес: ул. Тихорецкая, д.19

Объявление в архиве