Продажа 2-комнатная квартира, Уфа, ул. Энтузиастов, д.10

Цена:
3 354 000 Р
Тип объявления: Продажа

Информация о недвижимости

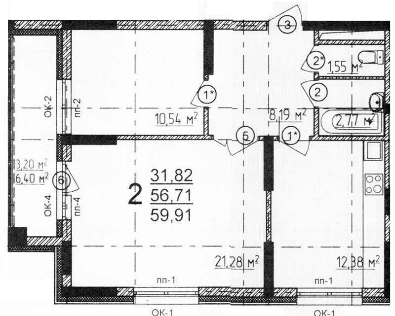
Площадь жилая: 31.82 м²
Площадь кухни: 10.54 м²
Количество комнат: 2
Этаж : 9
Тип дома: Кирпичный
Дополнительная информация: Продается двухкомнатная квартира в новом строящемся жилом комплексе, находящийся в октябрьском районе г. Уфа, по ул.Энтузиастов, 10.Площадь общая - 59.91, жилая - 31.82, кухня - 10.54. С/у совместный, лоджия.Новостройка на Энтузиастов (литер 1,2) – это дом в 20 этажей из 1 подъезда. Каркас – монолит. Наружные стены – силикатный кирпич. Фасад вентилируемый. Крыша плоская. Перекрытия – монолит. На стенах – штукатурка, на полу стяжка и линолеум. Двойные пластиковые окна. Наружные двери – усиленные металлические. Развитая инфраструктура, транспортная доступность, рядом школа и детский сад, торговые центры, вблизи расположен "Аквапарк-Планета", супермаркет О’КЕЙ, ипподром «Акбузат». Сдача дома в 3 квартале 2017 года. Оформление ФЗ 214(Оформление по 214-ФЗ с регистрацией в росреестре) Возможна ипотека (Сбербанк, ВТБ 24, Россельхозбанк). Материнский капитал, рассрочка до конца строительства.

Местоположение

Город: Уфа
Адрес: ул. Энтузиастов, д.10

Объявление в архиве