Продажа 2-комнатная квартира, Уфа, ул. Октябрьской Революции, д.62 стр., секция А

Цена:
5 514 000 Р
Тип объявления: Продажа

Информация о недвижимости

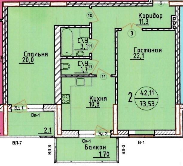
Площадь жилая: 42.11 м²
Площадь кухни: 10.08 м²
Количество комнат: 2
Этаж : 6
Тип дома: Кирпичный
Дополнительная информация: Продается двухкомнатная квартира в строящемся доме, Центр города!Улица Октябрьской Революции, 62 стр., площадью 73.53кв.м.. Площадь 73.53/42.11/10.08. Срок окончания сентябрь 2015 года. Дом кирпичный, отделка предчистовая (окна пластиковые ПВХ, усиленная входная металлическая дверь, унитаз, раковина, штукатурка, стяжка), скоростные лифты, консьерж.

Местоположение

Город: Уфа
Адрес: ул. Октябрьской Революции, д.62 стр., секция А

Объявление в архиве