| Цена: |
3 550 000 Р
|
| Тип объявления: | Продажа |
Информация о недвижимости |
|
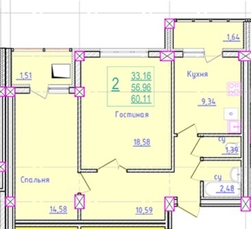
| Площадь жилая: | 33.16 м² |
| Площадь кухни: | 9.34 м² |
| Количество комнат: | 2 |
| Этаж : | 5 |
| Тип дома: | Кирпичный |
| Дополнительная информация: | Продается двухкомнатная квартира в новом строящемся Жилом Комплексе "Бульвр", площадью 60.11 кв.мОбщая площадь - 60.11 кв.м, жилая - 33.16 кв.м, кухня - 9.34 кв.м.Материал стен - силикатный кирпич, утеплитель.Отделка квартир черновая.Сдача объекта планируется в 3 квартале 2015 года.Ипотека.Каждому покупателю квартиры в подарок страхование имущества от страховой компании Ингосстрах, а также подарочный сертификат на сумму 10000 рублей от компании Askona. |
Местоположение |
|
| Город: | Уфа |
| Адрес: | ул. Российская, д.30 |
Объявление в архиве |