Продажа 1-комнатная квартира, Уфа, ул. Ворошилова, д.28 стр.

Цена:
1 208 000 Р
Тип объявления: Продажа

Информация о недвижимости

Площадь жилая: 18.25 м²
Площадь кухни: 8.81 м²
Количество комнат: 1
Этаж : 4
Тип дома: Кирпичный
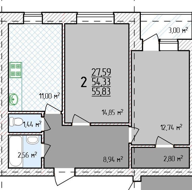
Дополнительная информация: Продается 1к.квартира в новом строящемся жилом комплексе "Байрам", площадью 38 кв.м.Новый ЖК расположен в 17 км от г. Уфы в сторону Шакши и состоит из шести 5-ти этажных кирпичных домов. Квартиры улучшенной планировки. На каждом этаже предусмотрено размещение однокомнатных  квартир, площадью от 37,76 кв.м. (7 шт), двухкомнатных – площадью от 55,83 кв.м. (3 шт).  По проекту территория будет огражденной, включает в себя магазин общей площадью 1 500 кв.м., парковочные места, детскую и спортивную площадки, озеленение.Чистовая отделкаРегистрация договора долевого участия в Росреестре.Экологически чистый районТранспортная доступностьИнфраструктура: магазины, детские сады, школыБлагоустройство: паркинг, площадки для отдыха детей и взрослых, озеленение, асфальтирование.Подбираем квартиры в новостройке в любом районе города Уфы и РБ - от ведущих застройщиков Уфы, а так же от подрядных организаций и инвесторов по ценам Ниже, чем у застройщика.Мы анализируем риски, репутацию и документацию, работаем только с проверенными застройщиками.Обратившись к нам Вы получите- подбор новостройки по вашим требованиям,- бронирование понравившегося варианта,- юридическое сопровождение, организацию заключения сделки и регистрации договора.В случае продажи и встречной покупки жилья, мы поможем быстро найти покупателя на Вашу квартиру.

Местоположение

Город: Уфа
Адрес: ул. Ворошилова, д.28 стр.

Объявление в архиве