Продажа 3-комнатная квартира, Уфа, ул. Сосновая, д.ЖК Сосны

Цена:
5 166 000 Р
Тип объявления: Продажа

Информация о недвижимости

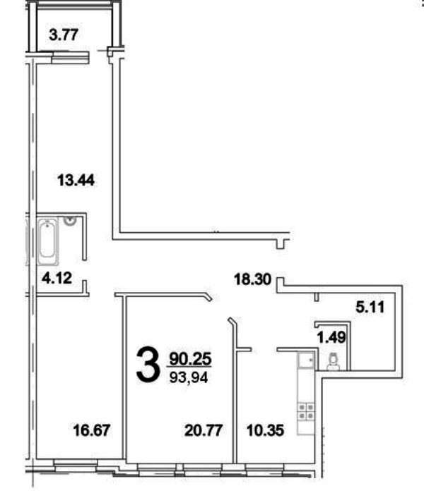
Площадь жилая: 50.88 м²
Площадь кухни: 10.35 м²
Количество комнат: 3
Этаж : 3
Тип дома: Кирпичный
Дополнительная информация: Продается 3к.квартира в новом строящемся жилом комплексе "Сосны", площадью 93.94 кв.м. Жилой Комплекс "Сосны". Срок введения в эксплуатацию 2015 год. Договор Долевого участия, 214 ФЗ, регистрация в регистрационной палате. Варианты оплаты - рассрочка, ипотека, 100% оплата.Месторасположение жилого комплекса «Сосны» удобно и престижно - это тихое уютное место, вдали от оживленных транспортных магистралей, шума и загазованности, рядом с лесом. Поблизости находятся река, три озера, большой лесной массив. Центр города расположен всего в 5 минутах езды от комплекса как на общественном, так и на личном транспорте. Для владельцев автомобилей на территории предусмотрены паркинги, что обеспечит отсутствие машин во дворах и позволит сохранить тишину и чистый воздух.Подбираем квартиры в новостройке в любом районе города Уфы и РБ - от ведущих застройщиков Уфы, а так же от подрядных организацийи инвесторов по ценам Ниже, чем у застройщика.Мы анализируем риски, репутацию и документацию, работаем только с проверенными застройщиками.Обратившись к нам Вы получите- подбор новостройки по вашим требованиям,- бронирование понравившегося варианта,- юридическое сопровождение, организацию заключения сделки и регистрации договора.В случае продажи и встречной покупки жилья, мы поможем быстро найти покупателя на Вашу квартиру.

Местоположение

Город: Уфа
Адрес: ул. Сосновая, д.ЖК Сосны

Объявление в архиве