Продажа 1-комнатная квартира, Уфа, ул. Адмирала Макарова, д.14

Цена:
1 450 000 Р
Тип объявления: Продажа

Информация о недвижимости

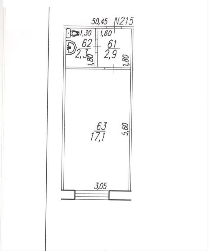
Площадь жилая: 22.0 м²
Площадь кухни: 3.0 м²
Количество комнат: 1
Этаж : 2
Тип дома: Панельный
Дополнительная информация: Продается теплая, светлая комната по адресу г.Уфа, ул. Адм. Макарова, 14. Площадью 22,3 кв.м., 2\9, панельного дома. Состояние среднее, пластиковые стеклопакеты, хорошая входная дверь.   Санузел совмещен. Кухня выделена. Спокойные, адекватные соседи, много семей с детьми. Оптимальный этаж для семьи с ребенком. Рядом детские сады, школа № 156, магазины, аптеки, парк для прогулок. До проспекта Октября 10 мин ходьбы. Торг уместен, ипотеку рассматриваем, документы готовы. Реальному покупателю мебель в подарок

Местоположение

Город: Уфа
Адрес: ул. Адмирала Макарова, д.14

Объявление в архиве