Продажа 1-комнатная квартира, Уфа, ул. Первомайская, д.71/4

Цена:
2 150 000 Р
Тип объявления: Продажа

Информация о недвижимости

Площадь жилая: 23.3 м²
Площадь кухни: 10.07 м²
Количество комнат: 1
Этаж : 2
Тип дома: Монолит/кирпич
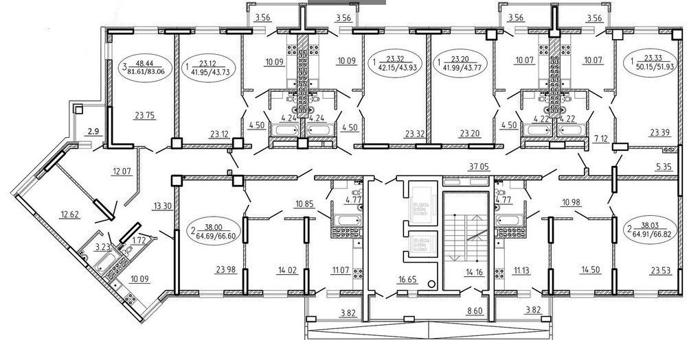
Дополнительная информация: Продается однокомнатная квартира в строящемся доме по ул. Первомайской, д.71 литер 4 в Калининском районе г. Уфы (мкр-н Черниковка).Квартира расположена на 2 этаже 12-этажного дома, материал строительства - монолит+кирпич. Общая площадь 51,93 кв. м., жилая 23,3 кв.м., кухня 10,07 кв. м. Продаваемая квартира имеет классическую планировку. При входе в квартиру попадаем в небольшую прихожую, справа совмещенный санузел площадью 4,22 кв. м., прямо - кухня с выходом на лоджию, а слева жилая комната правильной формы площадью 23,3 кв. м. Окна на кухне и в комнате выходят на юго-восток, в сторону ул. Кремлевская. Получистовая улучшенная отделка, срок сдачи 3-4 квартал 2017 года.  Оформление по Договору долевого участия согласно 214ФЗ с обязательной регистрацией в Росреестре. Возможна ипотека. Есть страхование гражданской ответственности застройщика в соответствии поправкам к 214-ФЗ РФ от 01.10.2015 года. Два детских сада находятся в соседнем дворе, в шаговой доступности гимназия №111, ближайшая остановка- "ул. Свободы (Кремлевская)". Очень развитая инфраструктура микрорайона.

Местоположение

Город: Уфа
Адрес: ул. Первомайская, д.71/4

Объявление в архиве