Продажа 2-комнатная квартира, Уфа, ул. Карла Маркса, д.36 стр.

Цена:
5 484 000 Р
Тип объявления: Продажа

Информация о недвижимости

Площадь жилая: 34.06 м²
Площадь кухни: 15.08 м²
Количество комнат: 2
Этаж : 5
Тип дома: Монолит/кирпич
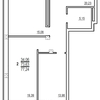
Дополнительная информация: Продается двухкомнатная квартира площадью 77,24/ 34,06/ 15,08 кв.м на 5 этаже восьмиэтажного строящегося монолитно-кирпичного дома в ЖК «Карла Маркса 36». Расположение-планировка: войдя, Вы оказываетесь в просторном холле (20,23 кв.м), следуя дальше по коридору: слева вход на кухню ( площадью 15.08 кв.м), с лоджией , справа с/у 5,15 кв.м (совмещенный), далее гостиная – 19.4 кв.м с выходом на лоджию, и спальня 14 кв.м. Преимущества данной квартиры: окна во двор ( на Юго-Восток), с одной стороны, с другой - со стороны комнат, окна смотрят в сторону Запада. Во всех комнатах - наличие лоджий. Отделка черновая улучшенная: стяжка пола, штукатурка стен, розетки, выключатели, окна ПВХ, остекление из окрашенного стекла бронзового цвета. Срок сдачи, планируемый – 3кв.2015г. Благоустройство прилегающей территории: детская площадка, озеленение, парковочные места. Возможна ипотека банков: ДельтаКредит, Банк Москвы, ВТБ 24. Жилой комплекс «Карла Маркса 36» - это семиэтажный элитный дом, удобно расположенный в историческом центре г. Уфы. Воплощает в себе образ современного и комфортного элитного жилья с сохранением исторического колорита «старой Уфы». Развитая инфраструктура жилого дома Карла Маркса 36 обусловлена близостью таких объектов как: Гостиный Двор, Арт Галерея, Александрийский пассаж, ТРК «Экватор», ТРК «Центральный рынок». В шаговой доступности: сквер им. Мустая Карима, парк им. Якутова, «Уфа – Арена», крытые и открытые теннисные корты. Образовательные учреждения: детские сады, гимназии №39 и №91; станция юных техников для любознательных детей, Башкирский Государственный Университет и Уфимский Государственный Авиационный Технический Университет. С разрешительной документацией Вы можете ознакомиться у нас в офисе. По вопросам обращайтесь по тел: 8-927-93-77-823/962-546-15-50

Местоположение

Город: Уфа
Адрес: ул. Карла Маркса, д.36 стр.

Объявление в архиве