Продажа 2-комнатная квартира, Уфа, ул. Тихорецкая, д.19

Цена:
3 300 000 Р
Тип объявления: Продажа

Информация о недвижимости

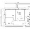
Площадь жилая: 39.0 м²
Площадь кухни: 8.0 м²
Количество комнат: 2
Этаж : 10
Тип дома: Монолитный
Дополнительная информация: Продам квартиру в Новом жилом комплексе по ул. Комсомольская!Новый жилой комплекс комфорт-класса «Семья» от ответственного застройщика "Строй-Высота"– это 16-этажный жилой дом, расположенный в Октябрьском районе г. Уфы, по улице Тихорецкая, д.19. Специально спроектированный для уютной семейной жизни в городе с удобным расоложением, выгодной инфраструктурой и кирпичными стенами- этот жилой комплекс является лучшим решение для молодой семьи и тех, кто ищет максимальный комфорт за оптимальную цену.трехкомнатная Квартира 66.40/39/9, лоджия, кирпичный дом, с предчистовой отделкой в районе "Универмаг "Уфа"всего за 3 300 000! одна квартира по данной цене!сдача дома 1 квартал 2018г., вся разрешительная документация, разрешение на строительство есть, оформление ДДУ через рег палату, страховка, гарантия 5 лет.Ипотека.надежный проверенный застройщик.._____________________________________Застройщик ООО «Строительно-монтажное управление-4». Проектная декларация размещена на сайте domofond.ru.

Местоположение

Город: Уфа
Адрес: ул. Тихорецкая, д.19

Объявление в архиве