Продажа 2-комнатная квартира, Уфа, ул. Карла Маркса, д.36

Цена:
3 200 000 Р
Тип объявления: Продажа

Информация о недвижимости

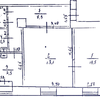
Площадь жилая: 31.0 м²
Площадь кухни: 7.0 м²
Количество комнат: 2
Этаж : 3
Тип дома: Кирпичный
Дополнительная информация: №88481 г. Уфа, ул. Карла Маркса д. 36, продаю полнометражную двухкомнатную квартиру в центре города в Ленинском районе города Уфы. Этаж 3/5 кирпичного дома. Общая площадь квартиры 53,8 кв.м., из них: жилая 31,6 кв.м., площадь зала 18,1 кв.м., площадь комнаты 13,5 кв.м., площадь кухни 7,5 кв.м., площадь коридора 9,8 кв.м., площадь санузла (раздельный) 3,9 кв.м. площадь кладовки 1 кв.м., В доме кап ремонт сделан, в подъездах окна заменены, квартира тёплая, частично заменены окна, потолки высокие. Отличное местоположение дома, рядом садик №33, 31, 6. Гимназия №39, 91. Звоните не стесняйтесь. Подъезд чистый и ухоженный, территория дома обустроена детской площадкой, парковочными местами с освещением. Квартира выгодно расположена к объектам инфраструктуры: остановки общественного транспорта, магазины, супермаркеты: байрам, магнит, полушка, аптеки, детский сад, парикмахерские, автоцентры, автомойка, парк. Продажа возможна как за наличный расчёт, так и в ипотеку. Квартира оформлена в собственность. В квартире никто не прописан и не живёт. Чистая продажа. Комиссии при покупке данной квартиры нет. Звоните! Заявки на ипотеку в банки Вы можете подать в нашем офисе. ВНИМАНИЕ!!! Возможно использовать материнский капитал в качестве первоначального взноса. Если для покупки данной квартиры Вам необходимо продать свою недвижимость, Мы можем Вам в этом помочь, обращайтесь по номеру телефона, указанному в объявлении. Сделки нашего агентства застрахованы в Ингосстрахе полис страхования №433-545-045547/17. Агентство недвижимости входит в Башкирскую гильдию риэлторов.

Местоположение

Город: Уфа
Адрес: ул. Карла Маркса, д.36

Объявление в архиве