Продажа 2-комнатная квартира, Уфа, ул. Кузнецовский Затон, д.20 стр.

Цена:
2 920 000 Р
Тип объявления: Продажа

Информация о недвижимости

Площадь жилая: 23.3 м²
Площадь кухни: 9.0 м²
Количество комнат: 2
Этаж : 6
Тип дома: Монолит/кирпич
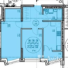
Дополнительная информация: Продается отличная 2-комнатная квартира в новом жилом комплексе «Белая река», Секция А (!), по улице Кузнецовский Затон 20 стр. в Кировском районе гор. Уфы со сроком сдачи 4 квартал 2017 года!У застройщика данной планировки давно нет! Квартира с видовой планировкой! вид на слияние рек Белая и р. Уфимка.Квартира с самой оптимальной планировкой! Общая площадь 48,2м2 распределена самым оптимальным образом: при входе есть место под шкаф – купе, справа просторный с/у и большая кухня 9м2 с выходом на лоджию с панорамным остеклением. Комнаты раздельные: 13,1 м2 и 10,2 м2. Квартира расположена на 6-м этаже 25-ти этажной секции А.Отделка  получистовая белая: квартиры готовы к поклейке обоев, потолочным и напольным покрытиям, выполнена сверхпрочная цементная стяжка пола, лучевая разводка отопления.1 Взрослый собственник.Покупка квартиры осуществляется с обязательной регистрацией Уступки к Договору Долевого Участия согласно ФЗ.214 в Россреестре (рег. палата).Ипотека, маткапитал, сертификаты возможны!

Местоположение

Город: Уфа
Адрес: ул. Кузнецовский Затон, д.20 стр.

Объявление в архиве