Продажа 1-комнатная квартира, Уфа, ул. Гвардейская, д.48/3

Цена:
1 590 000 Р
Тип объявления: Продажа

Информация о недвижимости

Площадь жилая: 17.0 м²
Площадь кухни: 6.0 м²
Количество комнат: 1
Этаж : 9
Тип дома: Панельный
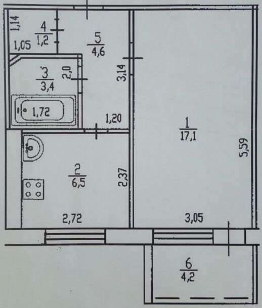
Дополнительная информация: Предлагаю купить однокомнатную квартиру в Гвардейском районе города Уфы, по ул. Гвардейская д. 48/3,Этаж 9/9 Панельного дома.-общая площадь квартиры 32,8 кв.м.,-жилая площадь квартиры 17,1 кв.м., -площадь кухни 6,5 кв.м.,-площадь коридора 4,6 кв.м.,-площадь санузла 3,4 кв.м.,-площадь лоджии 4,2 кв.м.,-площадь кладовой 1,2 кв.м., - Квартира чистая и аккуратная, сделан косметический ремонт, окна пластиковые, балкон остеклен, на полу линолеум, потолки выровнены, санузел отделан кафелем, в квартире остается: кухонный гарнитур и шкаф-купе в коридоре, подъезд чистый и ухоженный. Рядом садик №296, 102, 217, 193. Школа №79, 71, 129. Башкирский Лицей №42. Отличное местоположение дома.Территория дома обустроена, детской площадкой, расширенными парковочными местами.Квартира выгодно расположена к объектам инфраструктуры.Квартира оформлена в собственность.ПРИОБРЕТЕНИЕ ОБЪЕКТ ВОЗМОЖНО:-НАЛИЧНЫЙ РАСЧЕТ;-ИПОТЕКУ;-СЕРТИФИКАТЫ.Если для покупки данной квартиры Вам необходимо продать свою недвижимость, Мы можем Вам в этом помочь.Сделки нашего агентства застрахованы. Агентство недвижимости входит в Башкирскую гильдию риэлторов.

Местоположение

Город: Уфа
Адрес: ул. Гвардейская, д.48/3

Объявление в архиве