Продажа 1-комнатная квартира, Уфа, ул. Петропавловская, д.50

Цена:
2 996 000 Р
Тип объявления: Продажа

Информация о недвижимости

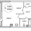
Площадь жилая: 14.0 м²
Площадь кухни: 10.0 м²
Количество комнат: 1
Этаж : 21
Тип дома: Монолит/кирпич
Дополнительная информация: Продается однокомнатная квартира в ЖК Петропавловский.21 этаж из 25 кирпично - монолитного дома.Общая площадь - 39,95 кв.м.Жилая площадь - 14 кв.м.Площадь кухни - 10,8 кв.м.Санузел совместный - 4,29 кв.м.Площадь кладовой - 1.74 кв.м.Площадь лоджии - 6.66 кв. м.Здание Жилого Комплекса «на Петропавловский» запроектировано по индивидуальному проекту, и представляет собой 4-х секционный жилой дом переменной этажности 23-28, из них 21-25 жилых этажей со встроено-пристроенными помещениями и подземной автостоянкой на 316 мест, первый и цокольный этаж отведен под магазины, офисные помещения и помещения для занятий спортом. Каркас дома монолитный, железобетонный с кирпичным выполнением стен. Облицовка здания выполнена по технологии «вентилируемый фасад», наружный слой отделки - керамогранит. Витражное остекление лоджий выполняется из алюминиевого профиля. Системы видеонаблюдения, электронного доступа в дом, дистанционного управления отоплением и освежением с датчиками предупреждения аварийных ситуаций сделают жизнь очень комфортной и безопасной. Проектом предусмотрена собственная газовая котельная позволяющая регулировать температуру теплоносителя в зависимости от наружной температуры снижая таким образом затраты на отопление. А использование передовых фасадных и оконных систем позволяют значительно улучшить микроклимат внутренних помещений и снизить уровень внешнего шумового загрязнения. Дворовая территория жилого комплекса отделена от проезжей части улицы зданием комплекса и металлическим ограждением, что делает внутреннее пространство тихим и уютным. На самой территории размещаются спортивные, детские, хозяйственные и другие площадки. А для гостей сотрудников и посетителей встроенных учреждений предусмотрены открытые парковки для автомобилей жильцов, вне дворовой территории. Для озеленения проектируемого участка предусматривается устройство газонов с посевом многолетних трав. Кроме того, проектом предусмотрена установка малых архитектурных форм: детские игровые площадки, скамейки.

Местоположение

Город: Уфа
Адрес: ул. Петропавловская, д.50

Объявление в архиве