Продажа 2-комнатная квартира, Уфа, ул. Максима Горького, д.44

Цена:
3 421 000 Р
Тип объявления: Продажа

Информация о недвижимости

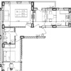
Площадь жилая: 42.0 м²
Площадь кухни: 5.0 м²
Количество комнат: 2
Этаж : 15
Тип дома: Монолит/кирпич
Дополнительная информация: Продается двухкомнатная квартира в ЖК Квартал мира. На 15 этаже, 18 этажного кирпично-монолитного дома, в Орджоникидзевском районе г. Уфы по адресу ул. Максима Горького 44.Общая площадь - 62,2 кв. м.Жилая площадь - 42,6 кв. м.Площадь кухни - 5 кв.м (Кухня совмещена с комнатой)Санузел - 5 кв. м.Лоджия - 3,4 кв. м.Квартал предлагает отличное местоположение в зеленом и обустроенном районе и соседство с парком Победы, крупнейшим стадионом и бассейном города «Нефтяник», Уфимским Нефтяным Университетом, мечетью «Ляля-Тюльпан», школами, гимназиями и детсадами.В жилом комплексе «Квартал мира» действует рассрочка платежа до окончания строительства, а также программы ипотечного кредитования совместно с ведущими российскими банками: Сбербанк и «ВТБ24» и еще 10 банками- партнерами. Сотрудничество с разными банками, имеющими устойчивую репутацию, позволяет подобрать наиболее подходящий вариант ипотеки, исходя из конкретной ситуации каждого покупателя.

Местоположение

Город: Уфа
Адрес: ул. Максима Горького, д.44

Объявление в архиве