Продажа 1-комнатная квартира, Уфа, ул. Давлеткильдеева б-р, д.5

Цена:
2 350 000 Р
Тип объявления: Продажа

Информация о недвижимости

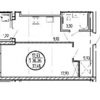
Площадь жилая: 17.0 м²
Площадь кухни: 9.0 м²
Количество комнат: 1
Этаж : 25
Тип дома: Монолит/кирпич
Дополнительная информация: Продам 1-к комнатную квартиру площадью 35,83кв.м. (окна на ул.Российская)Дом сдан!Расположен в зеленой зоне м-н Глумилино, тихий спокойный район, шикарный вид из окон , перед домом просторная стоянка, во дворе видео наблюдение, двор не проездной. В подъезде консьерж, парадная в мраморе. В квартире получистовая отделка. Двор:  Видеонаблюдение;  Закрытая территория;  "Двор без машин";  Игровые площадки для разных возрастов;  Многоуровневая парковка  Рядом расположены школа №88, лицей №6 и дет сад №322. Остановка общ. транспорта кинотеатр"Искра", Бульвар Тюлькина. Один взрослый собственник. Чистая продажа, ключи в день сделки. 

Местоположение

Город: Уфа
Адрес: ул. Давлеткильдеева б-р, д.5

Объявление в архиве