Продажа дом, коттедж квартира, Уфа, Нагаево "Премиум", Берестяная

Цена:
3 990 000 Р
Тип объявления: Продажа
Цена за м²: 40 714 Р

Информация о недвижимости

Категория жилья: Новое
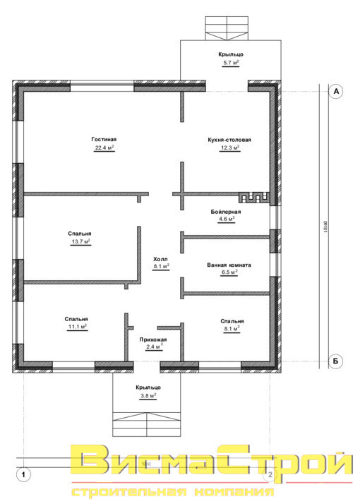
Площадь полная: 98.0 м²
Количество комнат: Дом, коттедж
Совмещенный санузел: Да
Тип дома: Кирпичный
Дополнительная информация: Продается уникальный 1 этажный каменный дом площадью 94кв.м. в комплектации «Оптима» на участке 7 соток в п. Нагаево «Премиум» по улице Берестяная, 26 в 15 км. от Уфы. Экологически чистый район - на территории расположены два благоустроенных пруда, Транспортная доступность - 20 минут до центра города, развитая инфраструктура: две школы, два детских садика, детский футбольный клуб «Башкирия» Администрация Нагаевского сельсовета , поликлиника,3 супермаркета, фитнес клуб для детей и взрослых. Коттедж выполнен из керамзитобетонных блоков и кирпича. Кровля из металлочерепицы. Долговечный, комбинированный фасад из светлого олицовочного кирпича с фиброцементными панелями. Входная лестница и цоколь отделаны «Декоративным» камнем. Установлены качественные окна «Века»: двухкамерный стеклопакет (3 стекла), усиленный профиль. Выполнена получистовая отделка. Стены оштукатурены гипсовой экологичной штукатуркой. Полы - идеально ровная песчано-цементная стяжка. В доме продуманная инженерия (Отопление, водоснабжение, канализирование, электромонтаж по ГОСТу). Скважина глубиной 20м, канализация «Шамбо». В доме 3 уютных спальни, светлая гостиная , функциональная кухня-столовая, большая ванная комната. Высота потолков 2,8 м.

Местоположение

Город: Уфа
Адрес: Нагаево "Премиум", Берестяная

Объявление в архиве