Вентиляция, проектирование, поставка, монтаж, сервис в Уфе.
| Цена: |
11 Р
|
| Рубрика: |
Услуги |
| Тип объявления: |
услуги |
| Город: |
Уфа |
| Описание: |
Опытные монтажники систем вентиляции выполнят монтажные работы проекту,
Создаем проекты по ТЗ,
Вентиляция под ключ.
Проводим техническое обслуживание систем вентиляции и агрегатных установок.
Установка противопожарных клапанов в Уфе.
Монтаж системы дымоудаления в Уфе.
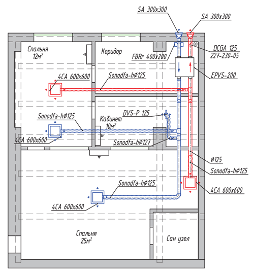
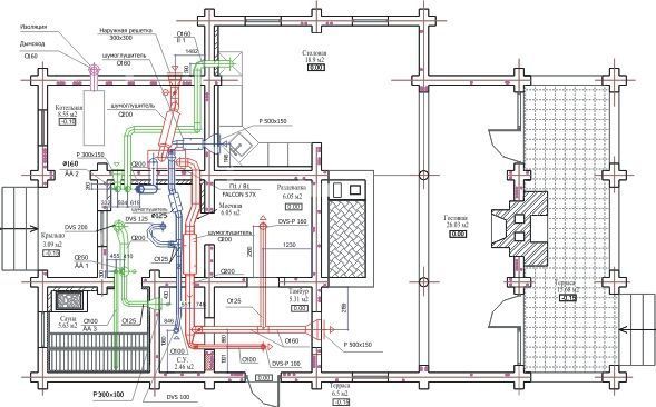
Установка, монтаж, проектирование приточновытяжных установок в Уфе.
Установка, проектирование, ремонт системы центральной вентиляции в многоэтажном строительстве.
Изготавливаем воздуховоды любого сечения, круглые, квадратные. |
Объявление в архиве
|
Объявление размещено 20 января 2015
Оъявление обновлено 21 января 2015
Размещение объявлений на проекте Объявления@RB7.ru бесплатное.
Доска объявлений Уфы — лучший способ продать или купить вещи из рук в руки в Уфе и Республике.